Espace propriétaire
fr
Saint-Calais (72120)

9 pièces - 166,40 m²

INVESTISSEMENT ST CALAIS

44 500 €
Ref : 7100
A propos de ce bien

INVESTIR EN SARTHE - Immeuble en partie loué à venir découvrir dans le Centre de SAINT-CALAIS proche de toutes les commodités.

L'ensemble immobilier comprend :

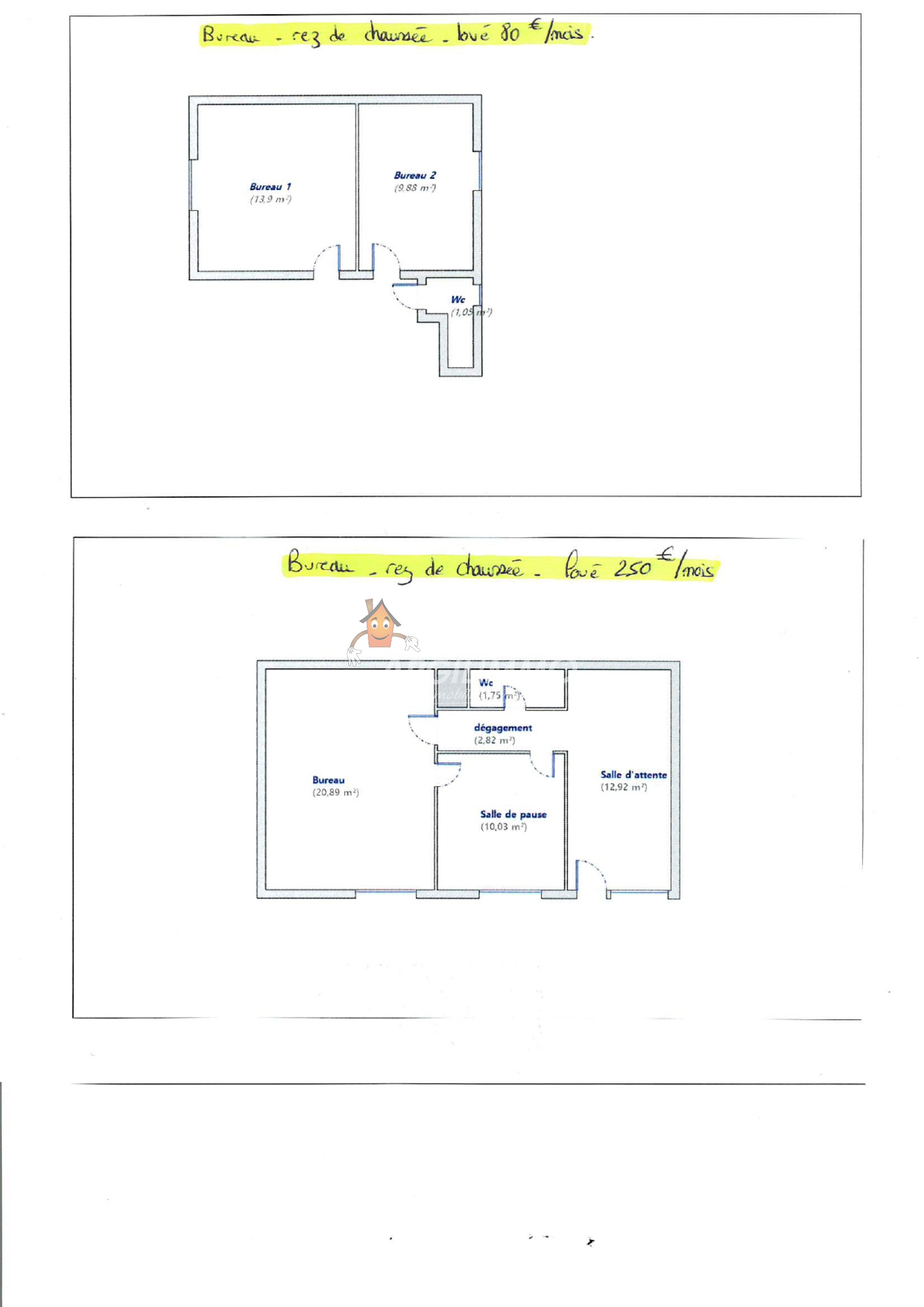
- 2 bureaux loués - 24.83m² - (80€/mois)

- 4 studios à rénover. Surfaces : 24.90m², 21.90m², 24.12m², 22.24m²

- 1 grenier aménageable (possibilité de rénover en studio/appartement)

- Un ensemble d'accueil avec bureaux loués 48.41m² - 250€/mois.

- Une cour fermée avec sa petite dépendance atypique.

Pour plus de renseignements contactez votre agence immobilière ARGILIMMO - par téléphone au 0243353140 ou par email : contact@argilimmo.com, une équipe de professionnels, habilités et passionnés vous accompagne tout le long de votre projet immobilier.

Descriptif de ce bien
Général
Code postal 72120
surface terrain 212 m²
Surface loi Carrez (m²) 166,40 m²
Nombre de pièces 9
Détails
Mode de chauffage Gaz de ville
Type de chauffage TRAD_TYPE_CHAUFF_CHAUDIERE
Format de chauffage Central
Balcon NON
Terrasse NON
Sous/sol SANS
Cave OUI
Surface cave (m²) 1
Composition
Etage 2
palier 11 m²

WC 1 m²

Studio de droite 24.12 m²

Studio de gauche 22.24 m²

Etage 3
Grenier aménageable 30 m²

Rez de chaussée
Bureaux 24.83 m²

Bureaux 48.41 m²

Etage 1
Studio de droite 24.9 m²

Studio de gauche 21.90 m²

Financier
Prix de vente honoraires TTC inclus 44 500 €
Prix de vente honoraires TTC exclus 40 000 €
Honoraires TTC à la charge acquéreur 11,25 %
Taxe foncière annuelle 933 €
Energie
DPE GES
Contacter pour ce bien
L'agence
Téléphone 02 43 35 31 40
Adresse
108 rue Nationale 72440 Bouloire

* Champ obligatoire

Les informations recueillies sur ce formulaire sont enregistrées dans un fichier informatisé par La Boite Immo agissant comme Sous-traitant du traitement pour la gestion de la clientèle/prospects de l'Agence / du Réseau qui reste Responsable du Traitement de vos Données personnelles. La base légale du traitement repose sur l'intérêt légitime de l'Agence / du Réseau. Elles sont conservées jusqu'à demande de suppression et sont destinées à l'Agence / au Réseau. Conformément à la loi « informatique et libertés », vous disposez des droits d’accès, de rectification, d’effacement, d’opposition, de limitation et de portabilité de vos données. Vous pouvez retirer votre consentement à tout moment en contactant directement l’Agence / Le Réseau. Consultez le site https://cnil.fr/fr pour plus d’informations sur vos droits. Si vous estimez, après avoir contacté l'Agence / le Réseau, que vos droits « Informatique et Libertés » ne sont pas respectés, vous pouvez adresser une réclamation à la CNIL. Nous vous informons de l’existence de la liste d'opposition au démarchage téléphonique « Bloctel », sur laquelle vous pouvez vous inscrire ici : https://www.bloctel.gouv.fr Dans le cadre de la protection des Données personnelles, nous vous invitons à ne pas inscrire de Données sensibles dans le champ de saisie libre.
Ce site est protégé par reCAPTCHA, les Politiques de Confidentialité et les Conditions d'Utilisation de Google s'appliquent.

Découvrir nos outils